売 買
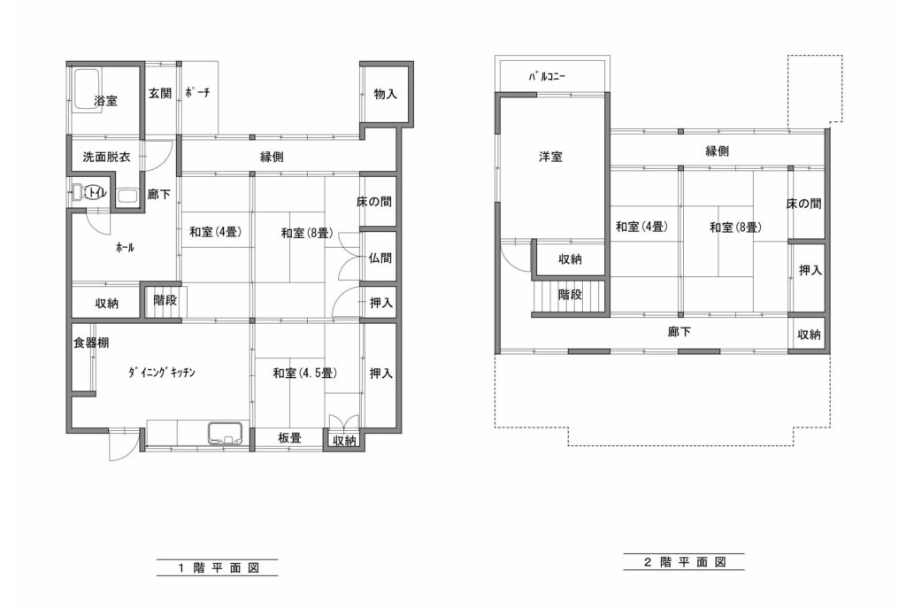
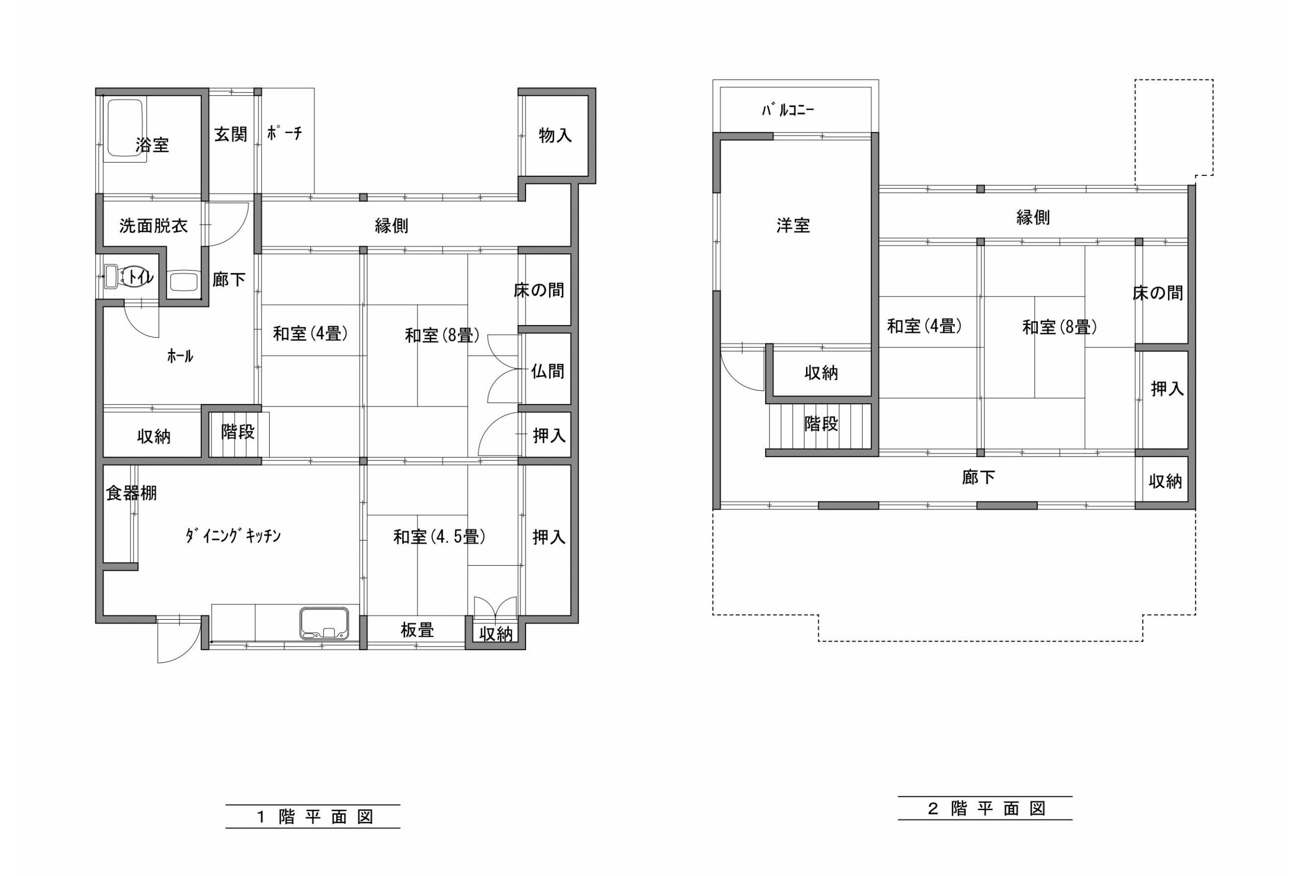
1階
2階


またダイニングキッチンの天井には扇風機が取り付けられており、昭和チックな趣も醸し出しています。
所有されている方は県外にお住まいですが、家財整理のため何度も帰島されて、少しずつ片付けをされていました。
その時実家に泊まられていたおかげでしょうか、電気や水道も使用でき、直ぐに住める状態のようです。
| 種別 | 売買 |
| 売買価格 | 220万円 |
| 所在地 | 広島市南区似島町字家下33番 |
| 交通 | 似島桟橋より徒歩1分 |
| 都市計画/用途地域 | 都市計画区域外/無し |
| その他情報 | 高潮浸水想定区域・津波災害警戒区域 |
| 用途・構造 | 一戸建ての住宅、木造瓦葺2階建 |
| 延べ床面積 | 公簿 111.96m2 (33.86坪) |
| 敷地面積 | 公簿 95.86m2 (28.99坪) |
| 建築時期 | 公簿 昭和27年10月20日新築 |
| 土地権利 | 所有権 |
| 地目 | 宅地 |
| 間取り | 4部屋+DK+納戸 |
| 接面道路 | 広島市道 |
| 設備等 | 上水道、合併浄化槽、プロパンガス、電気温水器、水洗トイレ |
| 備考 | 現状渡し、山林等も引き取り希望 |
| 引渡/現況 | 空き家 |
| 取引形態 | 一般媒介 |
お問い合わせ 物件No.011
広島市中山間地域空き家バリュー再生・活性化事業
似島空き家バリュー再生ステーション運営団体
一般社団法人さくらブリッジ
TEL 082-554-1412(かんくう建築デザイン内)
運営団体:https://sakurabridge.com
【事業主体】広島市企画総務局地域活性推進課
広島市中山間地域空き家バリュー再生・活性化事業について
https://www.city.hiroshima.lg.jp/soshiki/13/340293.html




































